Inwestycja znajduje się w otoczeniu natury, zaledwie kilka kroków od Jeziora Mamry i promenady prowadzącej do plaży miejskiej. Wyobraź sobie poranne spacery w otoczeniu pachnących drzew, wieczory spędzane w kojącej ciszy nad wodą lub rodzinne pikniki wśród zieleni. Bliskość lasów, tras spacerowych i rowerowych sprawia, że to doskonałe miejsca dla osób, które lubią aktywność na świeżym powietrzu. Tu naprawdę poczujesz, czym jest życie w harmonii z naturą.
Osiedle Nad Stawem to miejsce, gdzie komfort życia łączy się z wyjątkowym otoczeniem. Położone w malowniczym regionie Mazur, zapewnia szybki dostęp do centrum Węgorzewa, a także innych ważnych ośrodków regionu. Dzięki bliskości miejskich udogodnień, takich jak sklepy, przedszkola, paczkomaty czy placówki medyczne, na wyciągnięcie ręki masz wszystko, czego potrzebujesz. To idealne miejsce, by żyć komfortowo, blisko do natury.
Osiedle Nad Stawem to kameralna inwestycja, która łączy nowoczesny styl z urokiem natury. Każdy z sześciu domów w zabudowie bliźniaczej został zaprojektowany, by zapewnić Ci komfort i prywatność. Największym atutem osiedla jest prywatny staw, należący wyłącznie do mieszkańców, który stanie się Twoim ulubionym miejscem relaksu. Zieleń oraz spokojna okolica tworzą wyjątkową przestrzeń, gdzie możesz odpocząć od miejskiego zgiełku.
Twój nowy dom to nie tylko przestrzeń w czterech ścianach, ale także własny ogród, który zaprasza do relaksu i spotkań w gronie rodziny czy przyjaciół. Duże działki pozwalają Ci zaaranżować zieloną oazę według własnych potrzeb – od kwitnącego ogrodu po przestrzeń do zabaw dla dzieci. Nie musisz martwić się też o parkowanie – każdy dom ma własne miejsca postojowe, które gwarantują wygodę i bezpieczeństwo.
Domy na Osiedlu Nad Stawem zaprojektowano z myślą o maksymalnym komforcie. Ogrzewanie podłogowe, pompa ciepła i klimatyzacja zapewnią Ci idealną temperaturę we wnętrzach o każdej porze roku. Dodatkowo każdy budynek jest przygotowany do podłączenia fotowoltaiki, co pozwala obniżyć koszty eksploatacji i zadbać o środowisko. Natomiast wysokiej jakości materiały budowlane zagwarantują trwałość oraz nowoczesny wygląd domów.
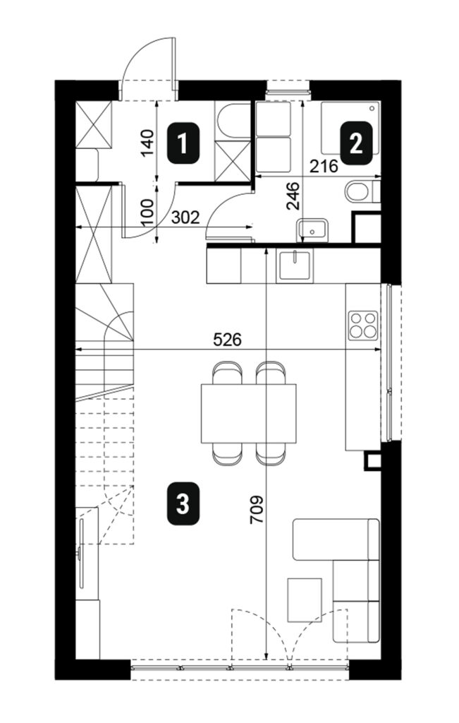
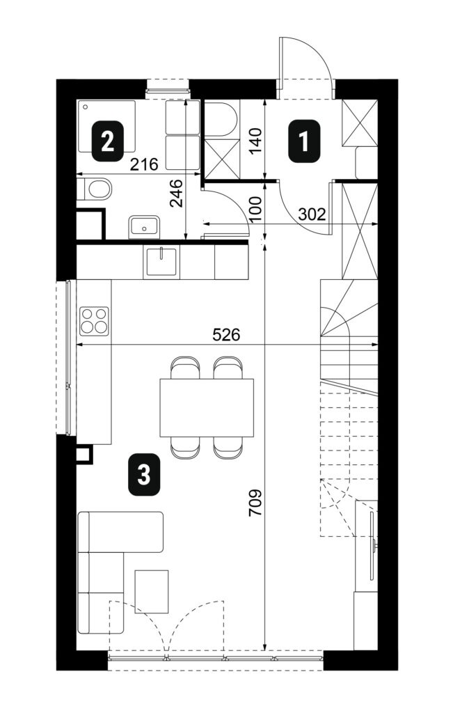
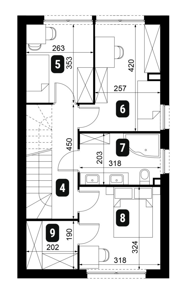
Wnętrza domów na Osiedlu Nad Stawem to jasne, przestronne przestrzenie, które możesz zaaranżować według własnego gustu. Każdy dom o powierzchni 88,4 m² oferuje funkcjonalny układ pomieszczeń, w tym garderobę, pralnię oraz dwie łazienki. Duże przeszklenia wpuszczają mnóstwo naturalnego światła, a otwarta przestrzeń dzienna z widokiem na taras sprawia, że każdy dzień nabiera wyjątkowego charakteru. To miejsce, gdzie możesz stworzyć swój wymarzony dom.
| Nr.Numer | Typ | PtPiętro | Pok.Pokoje | Pow.Pow | DziałkaPow. działki | ExtraBalkon/Taras | BudynekBudynek | DostępnośćDostępność | Cena | Plan | |
|---|---|---|---|---|---|---|---|---|---|---|---|
| 1 | 0 | 4 | 88,40m2 | 0,00m2 | Brak | 1 | Sprzedane |
NR:
Nr:
1
Pokoje:
4
Pow:
Pow:
88,40m2
Sprzedane
|
|||
| 2 | 0 | 4 | 88,40m2 | 0,00m2 | Brak | 1 | Dostępne | 790 000 zł |
NR:
Nr:
2
Pokoje:
4
Pow:
Pow:
88,40m2
Dostępne
Cena brutto:790 000.00 zł
8 936.65 zł/m2 |
||
| 3 | 0 | 4 | 88,40m2 | 0,00m2 | Brak | 2 | Dostępne | 790 000 zł |
NR:
Nr:
3
Pokoje:
4
Pow:
Pow:
88,40m2
Dostępne
Cena brutto:790 000.00 zł
8 936.65 zł/m2 |
||
| 4 | 0 | 4 | 88,40m2 | 0,00m2 | Brak | 2 | Dostępne | 790 000 zł |
NR:
Nr:
4
Pokoje:
4
Pow:
Pow:
88,40m2
Dostępne
Cena brutto:790 000.00 zł
8 936.65 zł/m2 |
||
| 5 | 0 | 4 | 88,40m2 | 0,00m2 | Brak | 3 | Dostępne | 790 000 zł |
NR:
Nr:
5
Pokoje:
4
Pow:
Pow:
88,40m2
Dostępne
Cena brutto:790 000.00 zł
8 936.65 zł/m2 |
||
| 6 | 0 | 4 | 88,40m2 | 0,00m2 | Brak | 3 | Dostępne | 810 000 zł |
NR:
Nr:
6
Pokoje:
4
Pow:
Pow:
88,40m2
Dostępne
Cena brutto:810 000.00 zł
9 162.90 zł/m2 |
Dodatkowe opłaty: udział w działce wspólnej 1230 zł brutto
Współpracujemy z najlepszymi ekipami wykończeniowymi, które zadbają o każdy szczegół w Twoim nowym domu. Dzięki ich doświadczeniu i terminowości możesz liczyć na doskonałe efekty oraz wsparcie na każdym etapie realizacji prac.
Zależy nam, aby proces zakupu nieruchomości był dla Ciebie prosty i bezstresowy. Dlatego oferujemy bezpłatne spotkanie z ekspertem kredytowym, który pomoże Ci znaleźć najlepsze rozwiązanie finansowe i przejść przez formalności krok po kroku.
„Tworzę przestrzenie, które inspirują i zachwycają. Ja jako, doświadczony architekt wnętrz, pomogę Państwu przekształcić marzenia w rzeczywistość. Od stylowych mieszkań po funkcjonalne biura – projektuję z myślą o Państwa potrzebach i preferencjach.”
„W Architektura Kania wierzę, że każdy zasługuje na piękne i funkcjonalne wnętrze. Moja misja to łączenie estetyki z praktycznością, aby stworzyć przestrzenie, które odzwierciedlają Państwa styl życia. Pracuję z pasją i zaangażowaniem, aby spełnić Państwa oczekiwania.”
Miejsce inwestycji:
Tymoszczuk & Pietrzak to spółka powstała z połączenia wieloletniego doświadczenia biznesowego, wyrafinowanej wizji oraz najwyższych standardów realizacji.
Włodzimierz Tymoszczuk to dynamiczny lider biznesu i ceniony deweloper, od lat z powodzeniem działający w różnych obszarach przedsiębiorczości. Jako twórca prestiżowych inwestycji mieszkaniowych, takich jak Kameralna Poleska w Giżycku oraz Nowa Jasna w Węgorzewie, konsekwentnie realizuje projekty oparte na jakości, funkcjonalności i długofalowej wartości.
Robert Pietrzak jest uznanym przedsiębiorcą i wizjonerem biznesu, posiadającym wieloletnie doświadczenie w realizacji inwestycji w wielu sektorach gospodarki. Odpowiadał za realizację flagowych projektów komercyjnych dla renomowanych marek, m.in. Biedronka, Bank PKO oraz Żabka, łącząc strategiczne podejście z najwyższymi standardami wykonania.
Połączenie kompetencji, doświadczenia oraz wspólnej pasji do nieruchomości zaowocowało powstaniem spółki Tymoszczuk & Pietrzak. Jednym z jej kluczowych projektów jest Osiedle nad Stawem – kameralna inwestycja stworzona z myślą o klientach poszukujących jakości, komfortu i ponadczasowej wartości. W przygotowaniu znajdują się kolejne prestiżowe realizacje.








